Dự án Imperia Grand Plaza Long An
Quy mô dự án Imperia Grand Plaza Long An
Imperia Grand Plaza Long An có tổng diện tích 113.112 m2, mật độ xây dựng 64%. Trong đó diện tích đất dành cho nhà ở là 47.710 m2, diện tích đất giao thông là 53.654 m2 và diện tích cho đất cây xanh là 11.418 m2.
Mặt bằng phân lô dự án
Dự án Imperia Grand Plaza cung cấp ra thị trường khoảng 426 căn nhà phố thương mại được thiết kế và xây dựng 4 tầng.
Bản thiết kế nhà phố
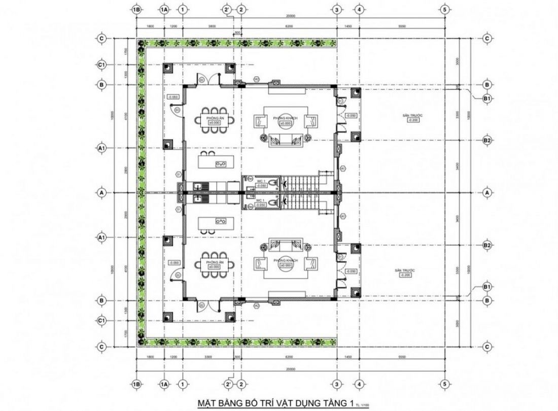
Mặt bằng các tầng
Dự án Imperia Grand Plaza sở hững những tiện ích nội khui như: khu mua sắm, cửa hàng tiện lợi, hệ thống phòng tập gym, spa, khu cafe sân thượng, khu vui chơi trẻ em, công viên trung tâm, hồ bơi. Từ dự án thuận tiện di chuyển đến các tiện ích lân cận như: trung tâm hành chính huyện Đức hòa, bệnh viện Xuyên Á, chợ Bàu Trai, THPT Hậu Nghĩa…
Thông tin dự án Imperia Grand Plaza Long An
Chủ đầu tư dự án Imperia Grand Plaza là Công ty Cổ phần Terra Gold Việt Nam, là công ty thành viên thuộc Tập đoàn Mik Group.
Công ty Cổ phần Terra Gold Việt Nam được thành lập ngày 22/06/2018, đăt trụ sở tại 423 Minh Khai, phường Vĩnh Tuy, quận Hai Bà Trưng, thành phố Hà Nội.
Doanh nghiệp hoạt động với tổng vốn điều lệ là 1.123 tỷ đồng theo thông báo thay đổi ngày 27/10/2020, do bà Trần Thu Hương làm người đại diện. Doanh nghiệp hoạt động chủ yếu trong các lĩnh vực như: kinh doanh bất động sản, tư vấn môi giới bất động sản, xây dựng nhà để ở và xây dựng các công trình kỹ thuật dân dụng.
Dự án Imperia Grand Plaza được khởi công xây dựng vào ngày 05/12/2021. Mức giá dự kiến của các căn nhà phố tại dự án từ 6 – 10 tỷ/căn.
Nguồn: cafeland.vn










